本篇文章给大家谈谈厨房设计图,以及厨房设计图对应的知识点,文章可能有点长,但是希望大家可以阅读完,增长自己的知识,最重要的是希望对各位有所帮助,可以解决了您的问题,不要忘了收藏本站喔。
话不多说,赶紧来看吧!
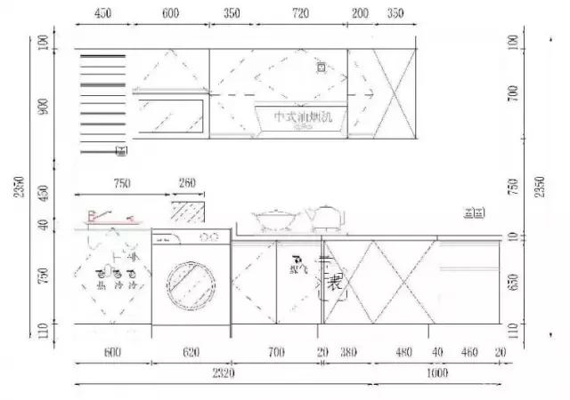
一字型厨房
比较适用于于小户型或单身公寓,别看它空间虽小,可五脏俱全,洗-切-炒动线流畅,一气呵成,做饭效率高。
cr:筋斗云-周言
小厨房最重要的是学会收纳,地柜、顶柜统统安排上,墙面可以借助隔板、挂篮,实现空间全利用。不仅如此,还能解放台面空间,视感更加整洁干净。
适用于中规中距或稍小的厨房。根据人体工程学原理设计出最为便捷的活动路线,夫妻俩一人备餐,一人炒菜正合适。
cr:筋斗云-滕昌材
cr:筋斗云-陈健阳
cr:筋斗云-林庆祥
L型厨房空间相对较大,配色方面可以选择自己喜欢,或独具一格的厨柜色彩,为空间增添别样亮点。开放格与封闭柜合理分布,既能满足不同的储物需求,也能丰富柜体层次。
U型设计多用于空间较大的厨房。最大的优势是分区分明,烹饪区、操作台、洗涤区都有各自相对独立的区域,互不干扰,让烹饪更加安全快速!
cr:筋斗云-陈健阳
cr:筋斗云-黄明贵
cr:筋斗云-周游

cr:筋斗云-张春晓
专门定制的橱柜还能将各种小家电内嵌进去,不多占空间,有助于保持厨房的干净整洁。台面、厨柜、墙壁的整齐划一,功能区划分明确,空间的层次感强。
适用于户型呈狭长型,不仅增加厨房利用率,让收纳空间大增,还能进一步提升烹饪效率,一个转身,就能完美的进行下一步的操作,既方便又随性自然。
cr:筋斗云-史守峰
cr:筋斗云-史守峰
二字型厨房被冠以效率之王的称号,关键在于合理的布局:冰箱、储物柜、水槽为一侧,烹饪区及备餐区为另一侧,分工明确,不显杂乱。

1、厨柜+吧台
cr:筋斗云-叶保良
cr:筋斗云-游新宇
开放式设计能够巧妙利用厨房空间,呈现一个视觉宽敞,通透感强。摩登时尚的厨房,再结合一个吧台,可以直接作为餐桌,平时在这里喝点小酒惬意又舒适。
黑爵木与爱马仕橙的搭配,气质与格调兼具,墙面空间再设计两个小隔板,各种调料品都能往上放,把收纳做到极致功能强大。
2、中岛型厨房
这绝对是大户人家的配置,中岛位置的独立吧台,还需预留充足的活动空间,也只有大户型才可驾驭,不仅可增加收纳空间,更是营造了令人向往的生活氛围。
cr:筋斗云-曲昊楠
L型橱柜加岛台布局,厨房的空间更加灵活,中西厨房的各种功能也得以兼具。中岛台是非常灵活实用的设计,既可以用作厨房的操作台补充,又可以作为吧台可供临时用餐,非常方便。
END,本文到此结束,如果可以帮助到大家,还望关注本站哦!