大家好,今天来为大家解答成都家和装饰这个问题的一些问题点,包括成都家和装饰也一样很多人还不知道,因此呢,今天就来为大家分析分析,现在让我们一起来看看吧!如果解决了您的问题,还望您关注下本站哦,谢谢~
楼盘名称:龙潭社区卫生服务中心
项目类型:工装
项目楼层:5楼
结构类型:框架
项目层高:3米
项目面积:477㎡
设计风格:现代风格
设计单位:成都家和装饰

施工单位:成都家和装饰
项目造价:33.49万
本项目原有社区医院设施比较陈旧,科室安排也不符合现在医护需求,所以在本次改造中,着重考虑科室的合理安排和整体翻新,能够更好地为社区居民服务。
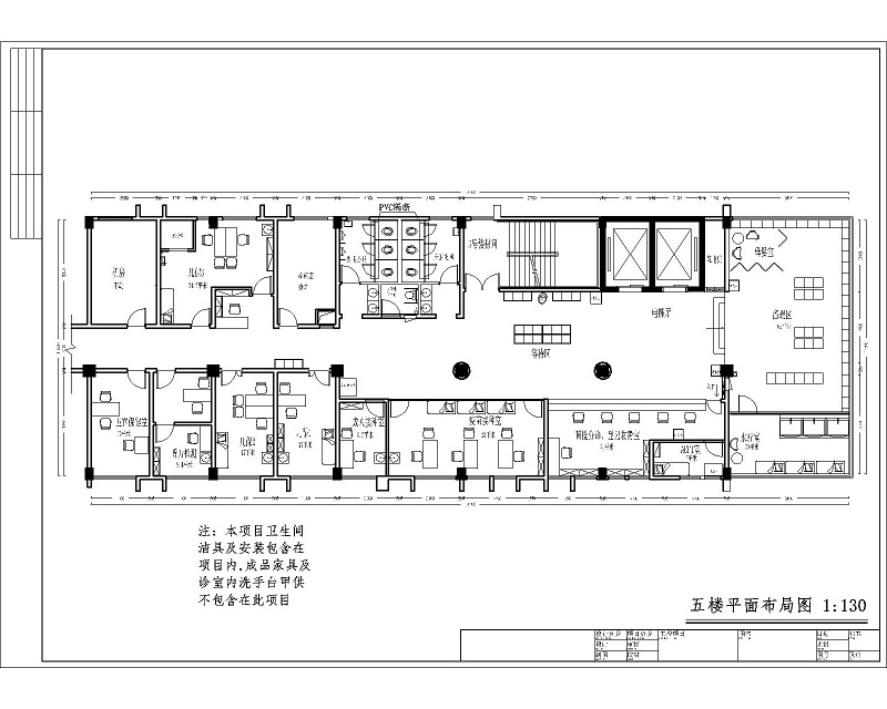
▲原始布局图
▲改造后布局图
本案改造要点:

1.医院主要服务对象是婴幼儿,儿童保健区需要扩大,并且设立相应的儿童检测室;
2.疫苗接种诊室分为儿童区与成人区,减少交叉;
3.观察区的空间较大,按照以往的接待情况相对来说比较浪费,这里将观察区进行分割,加入其他功能;
4.卫生间整体进行翻新,加入无障碍卫生间,保证腿脚不方便的人士能轻松使用卫生间;
5.在分诊区后方设置了预防接种异常反应的小诊室,以观察处理接种过程中发生的不良反应。
效果图展示

医院大厅宽敞明亮,承重柱用木质材料包裹隐藏,既有装饰性,又能提高安全性。
接种室全透明视觉保证了室内采光,也能观察到接受治疗的儿童情况。
大厅顶面用流畅的线条做造型,随性自然不刻意,灯光以筒灯为主,明亮不刺眼。
整体配色以粉色、绿色和蓝色为主,带给室内更多趣味和活力。
卫生间用木质和小白砖装饰,清爽舒适极具亲切感。
儿童保健区用三种颜色拼接装饰,更加活泼可爱,减少了传统医院的肃穆感和冰冷感。
诊室内以浅绿色为主,能够让人感觉宁静放松,加上极富童趣的装饰画等,有助于缓解儿童的紧张情绪。
孩子是未来,父母会给予他们更多关爱,我们也希望能在改善他们护理环境上尽一份力,祝愿每一个孩子都能健康快乐地成长!
相关信息就介绍到这里,成都家和装饰的问题希望对你有所帮助。